About 364 W 630 North St 11
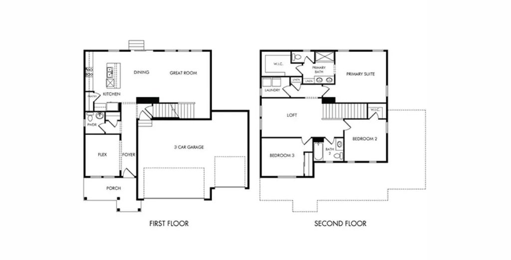
Brand NEW energy-efficient home ready October 2025! The perfect home with 3 bedrooms and 2.5 bath with a flex space on the 2nd floor, there is something for everybody. Move in ready with a washer, dryer and blinds through included! 2,734 total finished square footage. Start your homeownership journey in Tooele, where our move-in ready homes include no HOA fees and a 3 car garage. With our 60-day Closing-Ready Guarantee, you'll be reimbursed up to $5,000 in expenses related to delays we cause. Enjoy nearby shopping and easy access to downtown Salt Lake City. Plus, all floorplans come standard with energy-efficient features, spray foam insulation, and an unfinished basement.
Features of 364 W 630 North St 11
MLS® # | 2113342 |
---|---|
Price | $449,990 |
Bedrooms | 3 |
Bathrooms | 3.00 |
Full Baths | 2 |
Half Baths | 1 |
Square Footage | 2,802 |
Acres | 0.16 |
Year Built | 2025 |
Type | Residential |
Sub-Type | Single Family Residence |
Style | Stories: 2 |
Status | Under Contract |
Community Information
Address | 364 W 630 North St 11 |
---|---|
Area | Grantsville; Tooele; Erda; StanP |
Subdivision | VISTA MEADOWS |
City | Tooele |
County | Tooele |
State | UT |
Zip Code | 84074 |
Amenities
Utilities | Natural Gas Connected, Electricity Connected, Sewer Connected, Sewer: Public |
---|---|
# of Garages | 3 |
Is Waterfront | No |
Has Pool | No |
Interior
Interior | Carpet |
---|---|
Heating | Gas: Central |
Cooling | Central Air |
Fireplace | No |
# of Stories | 3 |
Exterior
Construction | Cement Siding |
---|
School Information
District | Tooele |
---|---|
Elementary | Overlake |
Middle | Clarke N Johnsen |
High | Tooele |
Additional Information
Date Listed | September 23rd, 2025 |
---|---|
Days on Market | 6 |
Foreclosure | No |
Short Sale | No |
RE / Bank Owned | No |
Listing Details
Agent | Michael Smith |
---|---|
Office | Meritage Homes of Utah, Inc. |
Contact Info | 801-477-5958 |