About 6968 Elk Wallow Dr 9
Build a beautiful home with HILLWOOD HOMES in the highly saught after neighbhorhood of SILVER CREEK VILLAGE. Just 10 minutes from Old Town Main Street and ski resorts. This is the place where you can truly have it all, the mountains, trails, world class snow, and only 20 minutes to Salt Lake City. Hillwood Homes builds a quality home with elegant designs. Contact the listing agent for more information on the remaining lots and floor plans.
Features of 6968 Elk Wallow Dr 9
MLS® # | 2114325 |
---|---|
Price | $1,100,000 |
Bedrooms | 3 |
Bathrooms | 3.00 |
Full Baths | 2 |
Half Baths | 1 |
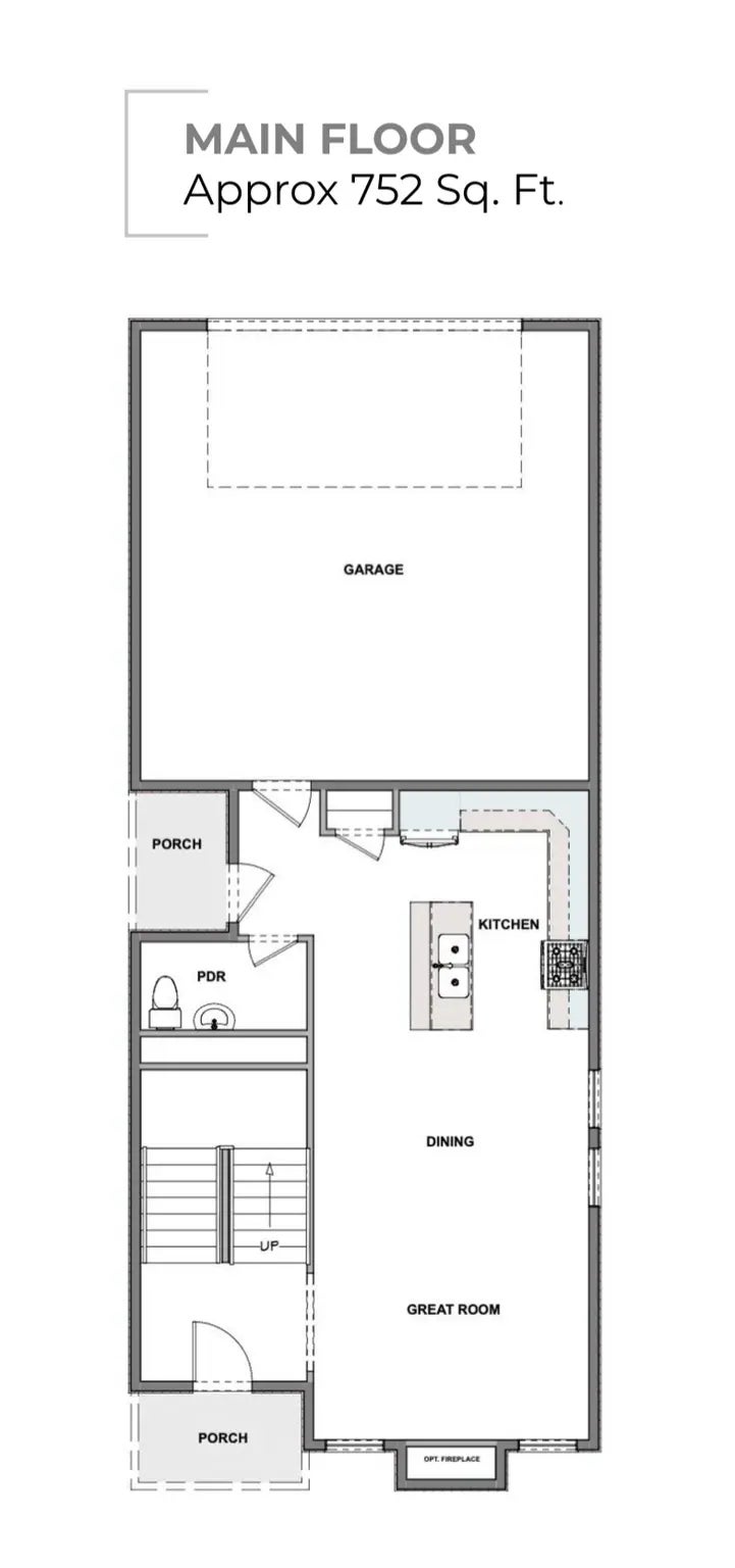
Square Footage | 2,705 |
Acres | 0.06 |
Year Built | 2025 |
Type | Residential |
Sub-Type | Single Family Residence |
Status | Active |
Community Information
Address | 6968 Elk Wallow Dr 9 |
---|---|
Area | Park City; Kimball Jct; Smt Pk |
Subdivision | SILVER CREEK |
City | Park City |
County | Summit |
State | UT |
Zip Code | 84098 |
Amenities
Amenities | Snow Removal |
---|---|
Utilities | Natural Gas Connected, Electricity Connected, Sewer Connected, Water Connected |
# of Garages | 2 |
View | Mountain(s) |
Is Waterfront | No |
Has Pool | No |
Interior
Interior | Carpet, Laminate, Tile |
---|---|
Interior Features | Alarm: Fire, Bath: Primary, Closet: Walk-In, Den/Office, Great Room, Kitchen: Updated, Range/Oven: Free Stdng. |
Heating | Gas: Central, >= 95% efficiency |
Cooling | Central Air |
Fireplace | No |
# of Stories | 3 |
Exterior
Exterior Features | Balcony, Double Pane Windows, Porch: Open |
---|---|
Lot Description | Road: Paved, Sidewalks, Sprinkler: Auto-Full, View: Mountain |
Windows | None |
Roof | Asphalt |
Construction | Asphalt, Stucco, Cement Siding |
School Information
District | South Summit |
---|---|
Elementary | South Summit |
Middle | South Summit |
High | South Summit |
Additional Information
Date Listed | September 27th, 2025 |
---|---|
Days on Market | 15 |
Zoning | Single-Family |
Foreclosure | No |
Short Sale | No |
RE / Bank Owned | No |
Listing Details
Agent | Lindsey Eggett |
---|---|
Office | COMMUNIE RE |
Contact Info | 801-918-1383 |